Dom ProduktySteel Casting Machine

2 Strands Steel Casting Machine

Certyfikaty
Chiny China Casting Machine Online Market Certyfikaty
Chiny China Casting Machine Online Market Certyfikaty
Opinie klientów
I want to say that your products very good. Thank you for all your suggestion, also good after sales service.

—— Mr Abílio Cipriano

Easy to talk with, very professional and fast service, the flag quality is super good. Even better than we ordered from Germany!!

—— Germany Fabian Scherb

Im Online Czat teraz

2 Strands Steel Casting Machine

2 Strands Steel Casting Machine
2 Strands Steel Casting Machine 2 Strands Steel Casting Machine

Duży Obraz :  2 Strands Steel Casting Machine

Szczegóły Produktu:
Place of Origin: Wuxi,China (Mainland)
Nazwa handlowa: HAIJUN
Model Number: R4M 2strands
Zapłata:
Minimum Order Quantity: 2 strands
Packaging Details: Container
Delivery Time: 2 months
Payment Terms: T/T,L/C
Supply Ability: 30 strands CCM per year
Szczegółowy opis produktu
Podkreślić:

die casting steel

,

steel making machine

 

2 Strands Steel Casting Machine

 

radius: R4M

Strand number : 2 strands

with ISO certification

advanced design 

safe operation

 

 

Description:

 

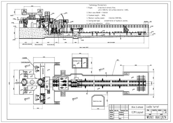
1. Basic standby technical parameters:

Steel billet casting machine radius

4m

Strand quantity

2 strands

Ladle support type

Ladle turret,Ladle car,ladle mounts

Tundish carriage

Semi-portal, cross sliding function

Casting method

Metering nozzle, open casting

Secondary cooling

Water cooling , 1 adjusting circuit

Withdrawal straightening machine

Totally 5 roller, progressive straightening

Roll table

Chain group centralized drive

Dummy bar

Rigid, with self-adapting dummy bar head

Billet cutting

Manual cutting

Billet conveying

Group centralized live roller table

Cooling bank type

Simple cooling bed

 

2.  Technical process description and capacity of steel billet CCM

Induction furnace:

Nominal capacity

15T

Tap-to-tap cycle 

60min

Furnace quantity 

2set

 

Production capacity 

Working days

330 days/year

Average number of daily furnace

24/day

Production capacity

100,000t/year

 

3.  Casting speed, productivity and strand quantity

    R4m radius casting machine can cast steel groups of different specifications, the maximum casting speed is as follows:

Casting sectional area(mm)

80×80

 

100×100

 

120×120

 

Casting speed(m/min)

3.0

2.8

2.6

 

NO.

Billet

size

Casting speed

hourly output

(tons)

Daily output

24hour

(tons)   

Annual output(330days)

(tons)

1

80×80

3.0m/min

7.42

178

58,766

2

100×100

2.8m/min

10.81

259.

85615

3

120×120

2.6m/min

15.69

377

124,266

   

    The calculation results is the ideal state of the production, please according to own actual situation of adjustment.

Steel grade

Casting grade(m/min)

Effective deformation rate(ε)

Allowable deformation rate(εmax)

Straight carbon steel

1.8~2.5

Please refer to the computational table

0.25

Low alloy steel

1.3~2.0

Please refer to the computational table

0.15~0.2

 

 4. CCM equipment parts list 

No.

Machine name

Weight

Unit

Quantity

Equipment body

 

 

 

1

ladle car

5T×2=10T

set

2

2

Tundish carriage

2T×2=4T

set

2

3

Tundish

1.4T×2=2.8T

pec

2

4

Mould 100×100

0.53×2=1.06T

set

2

5

Mould roller

0.01×2=0.02T

set

2

6

Mould cover

0.1T×2=0.2T

set

2

7

Mould oscillator

1.5T×2=3T

set

2

8

Secondary cooling spray tube

0.5T×2=1T

set

2

9

Secondary cooling guide part roll

0.5T×2=1T

set

2

10

Secondary cooling overboard steam drain system

1.1T

set

1

11

Withdrawal and straightening machine

6T×2=12T

set

2

12

Dummy bar 

0.9T×2=1.8T

set

2

13

Dummy bar storage device

0.7T×2=1.4T

set

2

14

Roll table before cutting

1.5T×2=3T

set

2

15

Simple cooling bed

1.2T

set

1

16

Billet head and cut off slag collection system

0.5T

set

1

17

Roll road

1.5T×2=3T

set

2

18

Billet out-going roller

1.5×2=3T

set

3

19

Steel lateral shifting machine

3T

set

1

20

Flame cutting machine

1T×2=2T

set

2

21

Hydraulic station system

1.6T

set

1

22

Water cooling station

1.6T

set

1

23

Steel platform

45T

 

1

Three Electric System

 

 

1

Electric control equipment

 

set

1

2

Scene meter

 

set

1

3

Computer system

 

set

1

Installation material

 

1

Electric instrument system material

1T

Set

1

2

Hydraulic piping system material

1T

Set

1

3

Cooling water system material

1T

Set

1

Offline equipment

 

1

Mould repairtable

 

Set

1

2

Mould support stand

 

Set

1

3

Pair arc template

 

Pair

2

 

2 Strands Steel Casting Machine 0

Szczegóły kontaktu
China Casting Machine Online Market

Osoba kontaktowa: Mr. zhang

Tel: 18810288990

Faks: 86-189-9086-7684

Wyślij zapytanie bezpośrednio do nas (0 / 3000)