제품 소개지위 주물

연속 주조 설비

인증
중국 China Casting Machine Online Market 인증
중국 China Casting Machine Online Market 인증
고객 검토
나는 좋은 당신의 제품 아주 말하고 싶습니다. 당신의 제안 전부를 당신을, 또한 판매 서비스 후에 좋은 감사하십시오.

—— Abilioo Cipriano 씨

로, 아주 직업 적이고 및 빠른 서비스는 말하게, 쉬운 깃발 질 최고 좋습니다. 우리가 독일에서 주문했다 보다는 나아지십시오 조차!!

—— 독일 Fabian Scherb

제가 지금 온라인 채팅 해요

연속 주조 설비

Continuous Casting Equipment
Continuous Casting Equipment Continuous Casting Equipment Continuous Casting Equipment

큰 이미지 :  연속 주조 설비

제품 상세 정보:
원래 장소: 우시, 중국 (본토)
브랜드 이름: HAIJUN
모델 번호: R6M 2 가닥
결제 및 배송 조건:
최소 주문 수량: 2개 가닥
포장 세부 사항: 컨테이너
배달 시간: 2개월
지불 조건: T/T,L/C
공급 능력: 매년마다 30 가닥 CCM
상세 제품 설명
강조하다:

연속 주조 기계

,

수평선상 캐스팅 머신

 

연속 주조 설비

 

 

빠른 세부 사항 :

 

직사각형 전성기 / 정방형 철판

반지름 : R6M, R8M, R10M

가닥 수 :1 / 2 가닥

최신 설계

 

안전한 운영

 

ISO 인증으로

 

우리는 1에서 가장 낮은 장비 제조 비용과 8개 가닥까지 고급 품질 연속 주조 기계를 생산할 수 있습니다.우리는 설계하고 사용자의 스틸제조 능력, 군인 숙사 크기, 강철 등급과 사용자의 필드 조건에 따라 최근 군인 숙사 연속 주조 기계를 제조할 수 있습니다.

 

 

기술 :

 

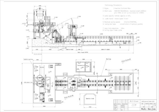
1. 기초적 대기 기술적인 매개 변수 :

기계 반지름을 던지는 강편

6m

스트랜드 수

2개 가닥

국자 지지 방식

래들 지지부, 래들 카

턴디시 차량

반문형 기중기, 교차하는 슬라이딩 기능

캐스팅법

미터링 노즐, 열린 캐스팅

2차 냉각

물 냉각, 1 조절회로

철수 교정기

완전히 5개 롤러, 진보적 교정

롤 테이블

사슬군은 드라이브를 집중시켰습니다

더미 바

셀프-어댑팅 더미바 헤드와 함께, 리지드

군인 숙사 절단

수압 커팅 기계

군인 숙사 컨베잉

그룹은 생생한 롤러 테이블을 집중시켰습니다

냉각대 유형

단순한 냉각대

 

2.  기술 공정 기술과 강편 CCM의 능력

유도로 :

공칭 정전 용량

15T

탭 간 사이클

 

60 분

노 양

 

3개 세트

 

생산력

 

근무일

330 일 / 년

매일 노의 평균 숫자

24/day

생산력

200,000t/year

 

3.  주입 속도, 생산성과 스트랜드 수

R6m 반지름 캐스팅 머신은 다른 사양의 철강 그룹을 던질 수 있습니다, 최대 주입 속도가 다음과 같습니다 :

부분적 지역(MM)를 던지기

100×100

125×125

150×150

주입 속도 (분 M /)

2.8

2.6

2.4

 

아니오.

군인 숙사

사이즈

주입 속도

시간별 출력

(톤)

일일 생산량

20 시간

(톤)

   

연례 출력(300days)

(톤)

1

100×100

2.8m/min

10.55

211

63302

2

125×125

2.6m/min

15.31

306

918445

3

150×150

2.4m/min

20.35

407

122,083

   

계산 결과는 조정의 실세를 소유하기 위해 미안하지만, 일치하는 생산의 이상적인 상태입니다.

강철 등급

캐스팅 등급 (분 M /)

효과적 변형 rate(ε)

무방한 변형 비율(εmax)

곧은 탄소강

1.8~2.5

계산 테이블을 언급하세요

0.25

저합금강

1.3~2.0

계산 테이블을 언급하세요

0.15~0.2

 

4. CCM 장비 부품 목록

 

부정

설비명

중량

모델과 상술

유닛

 
 

1

래들 지지부

17T

 

세트

1

 

2

턴디쉬 카

2.5×2=5T

 

세트

2

 

3

턴디시

 

1.4×2=2.8T

 

부분

2

 

4

곰팡이

0.5×2=1T

150×150

세트

2

 

5

곰팡이의 발 롤

0.01×2=0.02T

 

세트

2

 

6

곰팡이 커버

0.1×2=0.2T

 

세트

2

 

7

발진기 장치

2×2=4T

 

세트

2

 

8

2차 냉각 스프레이 튜브

0.5×2=1T

 

세트

2

 

9

단면봉을 안내하는 2차 냉각

0.7×2=1.4T

 

세트

2

 

10

이차적 냉각 증기 소모적인 시스템

1.5T

 

세트

1

 

11

철수와 교정기

5×2=10T

 

세트

2

 

12

비어 있는 진동 예방 시스템을 던지기

0.3×2=0.6T

 

세트

2

 

13

더미 바

0.9×2=1.8T

150×150

세트

2

 

14

더미 바 저장 장치

0.7×2=1.4T

 

세트

2

 

15

전단기 입구 롤

2×2=4T

 

세트

2

 

16

불꽃 절단 기계

3T

 

세트

2

 

17

자동 확정 길이 절단 장치

0.5T

 

세트

2

 

18

이동 롤러

2×2=4T

 

세트

2

 

19

맹렬한 롤러

3.5T

 

세트

4

 

20

강철 관통성 전달하는 기계

3.5T

 

세트

1

 

21

수력 스테이션 장치

2T

 

세트

1

 

22

2차 냉각 감파제

 

 

세트

2

 

23

냉각 자동화 물 유통 설비

1T

 

세트

1

 

24.1

제어판

 

 

세트

1

 

24.2

현장 기기

 

 

세트

1

 

24.3

컴퓨터 시스템

 

 

세트

1

 

25

강철 플랫폼

60T

 

 

1

 

 

연속 주조 설비 0

연락처 세부 사항
China Casting Machine Online Market

담당자: Mr. zhang

전화 번호: 18810288990

팩스: 86-189-9086-7684

회사에 직접 문의 보내기 (0 / 3000)