|
Detail produk:
Syarat-syarat pembayaran & pengiriman:
|
| Menyoroti: | Tekanan die casting,mesin pengecoran kontinu |
||
|---|---|---|---|
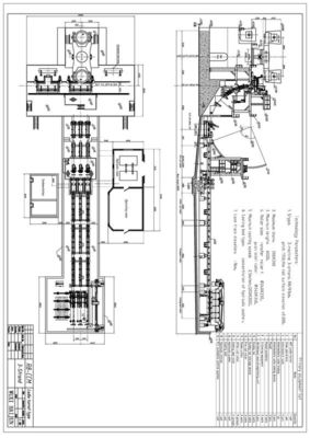
Sendok Turret CCM Casting Machine R 8m billet baja hidrolik
Detil Cepat:
Kami dapat menghasilkan kualitas tinggi mesin pengecoran kontinyu dari 1 sampai 8 helai dengan terendah manufaktur peralatan cost.We dapat merancang, memproduksi up-to-date billet mesin pengecoran kontinyu sesuai dengan kapasitas pengguna pembuatan baja, ukuran billet, baja dan kondisi lapangan pengguna.
Deskripsi:
1. Dasar siaga parameter teknis:
Radius mesin pengecoran baja billet | 8m |
kuantitas Strand | 3 helai |
Ladle jenis dukungan | Menara sendok atau mobil Ladle |
kereta tundish | Semi-portal, lintas fungsi geser |
metode pengecoran | Metering nozzle, casting terbuka |
pendingin sekunder | Gas dan air pendingin, 2 penyesuaian sirkuit |
Penarikan mesin meluruskan | Benar-benar 5 rol, pelurusan progresif |
meja putar | Berkendara kelompok rantai terpusat |
bar Dummy | Kaku, dengan bar kepala boneka diri beradaptasi |
pemotongan billet | Hidrolik atau pemotongan api mesin |
menyampaikan billet | Kelompok terpusat meja rol hidup |
Pendingin jenis bank | Tidur pendinginan sederhana |
2. Deskripsi proses teknis dan kapasitas baja billet CCM
Tungku induksi:
Kapasitas nominal | 40T |
Tap-to-tap siklus | 60menit |
kuantitas tungku | Pemutih 3sets |
Kapasitas produksi
Hari kerja | 330 hari / tahun |
Jumlah rata-rata tungku harian | 24 / hari |
Kapasitas produksi | 400,000t / tahun |
3. kecepatan Casting, produktivitas dan kuantitas strand
R8m mesin radius casting dapat melemparkan kelompok baja spesifikasi yang berbeda, kecepatan penuangan maksimum adalah sebagai berikut:
Casting luas penampang (mm) | 180x180 | 200 × 200 | 220 × 220 |
Kecepatan penuangan (m / min) | 1.6 | 1.8 | 2.0 |
TIDAK. | jabatan ukuran | kecepatan Casting | Output per jam (ton) | output harian 20hour (ton) | Output tahunan (300days) (ton) |
1 | 180 × 180 | 1.6m / min | 21,98 | 439 | 131.700 |
2 | 200 × 200 | 1.8m / min | 27,13 | 543 | 162.900 |
3 | 220 × 220 | 2.0m / min | 36,47 | 729 | 218.700 |
Hasil perhitungan adalah keadaan ideal produksi, silahkan sesuai dengan situasi aktual sendiri penyesuaian.
Kualitas baja | Casting grade (m / min) | Tingkat deformasi efektif (ε) | Diijinkan tingkat deformasi (ε maks) |
Baja karbon lurus | 1,8 ~ 2,5 | Silakan lihat tabel komputasi | 0.25 |
Baja paduan rendah | 1.3 ~ 2.0 | Silakan lihat tabel komputasi | 0,15 ~ 0,2 |
4. CCM daftar bagian peralatan
№ | nama peralatan | Berat | Model dan spesifikasi | Satuan | |||
1 | menara Ladle | 21T | set | 1 | |||
2 | tundish arriage | 12,5 × 2 = 25T | set | 2 | |||
3 | tundish | 6 × 2 = 12T | set | 2 | |||
4 | slag Pot | 2.5T | set | 1 | |||
5 | Perangkat perlindungan lengan panjang | 0.3T | set | 1 | |||
5 | kue tundish | 5.3 × 2 = 10.6T | set | 2 | |||
6 | nozzle tundish | set | 2 | ||||
7 | Casting operasi | set | 2 | ||||
8 | 200 × 200 Mould | set | 3 | ||||
9 | penutup Mould | set | 3 | ||||
10 | perangkat Oscillator | set | 3 | ||||
11 | semprot sundulan | set | 3 | ||||
12 | segmen berorientasi | set | 3 | ||||
13 | Kaku boneka bar | set | 3 | ||||
14 | Perangkat penyimpanan Dummy bar | set | 3 | ||||
15 | meluruskan dan | set | 3 | ||||
16 | meluruskan dan | set | 1 | ||||
17 | Gunting mendekati rol | set | 3 | ||||
18 | menjepit billet | set | 3 | ||||
19 | Torch pemotongan | set | 3 | ||||
20 | pemotongan koleksi | set | 1 | ||||
21 | Setelah memotong rol | set | 3 | ||||
22 | rollerⅠ transportasi | set | 3 | ||||
23 | rollerⅡ transportasi | set | 3 | ||||
24 | rol knockout | set | 3 | ||||
25 | bezel tetap | set | 3 | ||||
26 | pergeseran baja | panjang 6m | set | 3 | |||
27 | pendinginan koleksi | set | 1 | ||||
28 | Pendinginan tubuh Caster | termasuk backwash filter yang | set | 1 | |||
29 | penutup Caster | set | 1 | ||||
30 | panjang otomatis | set | 3 | ||||
31 | Prosesor sumber gas | gas instrumen kesepakatan | set | 1 | |||
32 | Platform baja | 1 | |||||
ⅱ | Hydrauli, pelumasan, sistem pneumatik | ||||||
1 | Tuan rumah stasiun hidrolik | set | 1 | ||||
2 | Stasiun hidrolik billet | set | 1 | ||||
3 | Hidrolik angkat tailgate | set | 2 | ||||
4 | Stasiun pelumasan terpusat grease | set | 6 | ||||
5 | pipa hidrolik | set | 1 | ||||
6 | pelumasan perpipaan | set | 1 | ||||
ⅲ | CCM 3-Electric | ||||||
1 | stasiun operasi | ||||||
2 | Paket software | ||||||
3 | PLC | set | 3 | ||||
4 | ET-200 PLC | set | 1 | ||||
5 | inverter | ||||||
① | WS mesin inverter | set | 3 | ||||
② | Gunting mendekati power inverter rol: 4kW | set | 3 | ||||

Kontak Person: Mr. zhang
Tel: 18810288990
Faks: 86-189-9086-7684